電梯走向決定人流方向,對做項目定位、人流動線分析等至關重要,對于建筑行業的朋友來說這不算什么?但對于不太懂圖紙的朋友們來說,會有些難度,小編在這里分享希望對朋友們有所幫助。
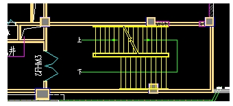
1、首先來看下面圖紙,在一張圖里出現了兩種,樓梯標注上下線【有轉角】的,有【沒轉角】的。

2、小編告訴你,圖1【沒轉角線為單跑梯】,就是說只有一個平臺直接上二樓,只有一個梯段、那么從哪看哪邊是上,哪邊是下的呢,這要看圖紙【首層】也就是最底層,圖2,看到沒?標注上的地方就是開始上樓的地方。


3、同樣小編告訴你,雙跑上樓的位置,圖1,雙跑梯子就是樓層中間有個休息平臺改變一次方向的樓梯,有兩個梯段。


4、現在小編告訴您什么樣的梯子是踏梯如圖,同樣一張圖紙出現了,兩種長度的梯子。層高同樣高,梯子長度不一樣,可能朋友們或許知道了哈,接著下看


5、對,短的為踏梯,那么它的上下端在什么位置呢,同樣看首層圖紙。

6、不用說了長的為坡梯,【坡梯一般出現在商業區比較多】,那么它的上下端在什么位置呢,同樣看首層圖紙。【注,坡梯比踏梯長,有時標注的踏步多一看就能分清了】

7、最后告訴大家,坡梯好踏梯好,還分幾種形式,例如:什么為【并行梯】什么為【交叉梯】,下節將告訴大家。


相關推薦:
怎么使用CAD命令繪制門前階梯?
cad建筑平面圖中怎么為建筑戶型添加電梯?
天正cad怎么畫多跑樓梯?cad三跑樓梯的畫法
新聞熱點
疑難解答