cad繪制的建筑圖紙中想要想要添加照明燈具,該怎么繪制燈具呢?下面我們就來看看詳細的教程。
1、首先我們在圖形中繪制軸網和標注軸網。下圖是繪制好的軸網。

2、我們點擊左側的工具欄點擊墻體,然后選擇繪制墻體,在彈出的窗口中把墻體的寬度設置為基礎的寬度。

3、然后用繪制墻體的方法繪制基礎。

4、我們選擇我們繪制好的墻體,然后點擊左側工具欄中的文件布圖,然后點擊分解對象。

5、分解后我們就可以用墻體工具繼續在圖形中繪制基礎墻體了。

6、然后我們用直線工具把坡線繪制一下即可完成基礎的繪制。

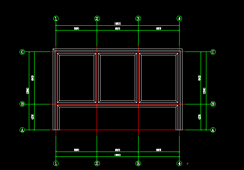
7、這是繪制好的基礎平面圖。如果需要我們可以在圖中插入圖框。

8、打開繪制好的建筑平面圖。

9、然后我們點擊右側工具欄中的平面設置選擇下面的矩形布置。

10、在彈出的電氣圖塊中設置回路編號,然后設置布置的燈具的行數及列數,完成后選擇我們要繪制的燈具的樣式。

11、然后我們點擊圖形中繪制區域點擊在需要繪制燈具的地方點擊左上角,然后拉動鼠標。

12、然后在需要拉框的對角點基點確定。

13、在需要的位置設置連接多排的導線,點擊即可確定。

14、這是繪制好以后的燈具圖。

以上就是cad給圖紙添加燈具的教程,希望大家喜歡,請繼續關注武林網。
相關推薦:
cad圖紙怎么快速插入熒光燈和立柱?
CAD怎么繪制紅綠燈? cad紅綠燈畫法
cad怎么畫應急燈? cad應急燈符號的畫法
新聞熱點
疑難解答