有時,在打印很大的CAD圖紙的時候,你只需要其中某一部分,這個時候怎么辦呢?下面為您講解如何打印部分圖紙。
首先,請打開你需要打印的CAD圖紙。并確定打印機能正常工作。

第二步,任意位置上按 ctrl+p或者如圖中左上角打印符號一樣,點擊以后彈出打印 窗口。選擇要用的打印機型號

第三步,選擇打印的格式,如1,縱向和橫向、2,紙張大小(A1,A2······等等)、3打印份數。還可以在[【特性】]里面更精細的選擇格式

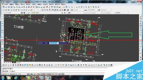
第四步,這是打印部分圖紙的關鍵,格式設置好以后,點擊【窗口】,此時會回到圖紙界面,此時圖紙屬于編輯狀態,所以是灰白色的。用鼠標選中你要打印的部分內容。圖紙中深黑色的地方就是選擇出來打印的部分(箭頭所指的地方)


五步,選擇內容以后,點擊回車,然后選擇好【布滿圖紙】和【居中打印】。一定要選擇哦,不然打印的東西,嚴重影響美觀

第六步,點擊【應用到布局】,然后點擊預覽,看看效果吧

這就是預覽的效果圖了,回車打印吧

新聞熱點
疑難解答