下面為大家介紹CAD在國標中怎么同時顯示公差代號和極限偏差方法,希望能對大家有所幫助!
方法/步驟
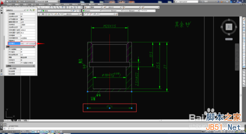
1、如圖,怎么同時顯示公差代號和極限偏差,以橢圓框中24尺寸為例;

2、選中24的尺寸,然后同時按Ctrl和1,彈出左側屬性框,滑動滾條,在文字替代里輸入相關文字;

3、得到如下尺寸;

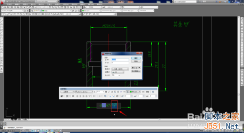
4、雙擊該尺寸,彈出文字格式框,然后再選中矩形框中的尺寸;

5、點擊框中的b/a;

6、選中矩形框中內容,雙擊,彈出堆疊特性框;

7、在樣式里選擇公差,點確定;

8、加上括號后點確定;

9、最終效果如圖,符合國標。

以上就是CAD在國標中怎么同時顯示公差代號和極限偏差方法介紹,希望能對大家有所幫助!
新聞熱點
疑難解答