在某些特定情況下,CAD繪圖時并不需要按原比例標注,而是要按照放大或縮小后的比例進行標注,這個時候如果把標注分解后再單個編輯,在圖形較復雜的情況下是特別麻煩的,所以在這里介紹一下更改標注比例的方法,希望對大家有幫助
方法/步驟
1、完成CAD的安裝:
目前網絡上AutoCAD2014版及其之前版本的試用版,非工作需要的話大家可以用網絡上的資源進行嘗試,如試用感覺良好或需要長期使用可購買正版,正版價格根據版本和代理的不同在2000到20000不等

2、打開CAD,并繪制好需要的圖形

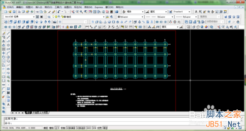
3、CAD默認的標注比例是1:1,標注完成后效果如圖,但是在某些特殊性況下,需要按1:10,1:100進行標注,則可以按下述步驟進行變更

4、在窗口上部的菜單中單擊 標注——標注樣式 彈出 標注樣式管理器,并點擊 新建,創建一個新的標注樣式

5、點擊 修改,彈出 修改標注樣式 窗口,選擇 主單位 ,找到 測量單位比例,調節比例因子

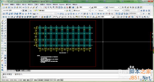
6、如需要按1:10進行標注,則將比例因子改為10,單擊確定,如修改前標注尺寸為900,在修改后標注尺寸為9000

7、修改前的標注尺寸如圖

8、修改后的標注尺寸如圖

以上就是CAD怎么更改標注比例方法介紹,希望能對大家有所幫助!
新聞熱點
疑難解答