AUTOCAD是一個十分實用的繪圖軟件,尤其在建筑學和機械制造專業中十分常用,在建筑圖紙中,會有墻體,門窗,遇到二層以上的建筑,就會出現要繪制樓梯的情況,下面,我們就來看看如何使用CAD繪制一個完整的建筑圖紙。

1、既然要進行建筑圖紙的繪制,首先,我們使用天正繪圖打開AUTOCAD,進入CAD的繪圖頁面,在左側的工具欄中選擇“軸網柱子——繪制軸網”。

2、在彈出的軸網設置窗口中根據需要進行軸網的設置的輸出,并繪制到CAD繪圖面板上,接著我們進行墻體的繪制,在左側工具欄選擇“墻體——繪制墻體”。

3、我們可以根據軸網自行繪制,也可以參考建筑圖紙進行墻體的繪制,將墻體繪制完成后,出現一個封閉的墻體,下面進行門窗的添加。

4、依舊是在左側的工具欄,我們選擇“門窗——門窗”進行門窗的繪制,系統會彈出設置窗口,門窗的設置全部在此窗口進行。

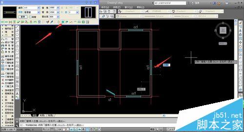
5、我們先進行門的放置,在設置窗口,可以自由的設置門的各種屬性,設置完成后,將鼠標移動到合適的位置,單擊即可確定位置并輸出門。

6、完成門的放置后,我們點擊設置窗口下方的快捷操作欄中的“插窗”,即可快速切換的放置窗的設置頁面。

7、窗的放置和門的放置相同,移動到相應位置單擊即可,注意門和窗只能放置在墻體上,否則不符合生活常識,在標準繪圖時要尤其注意。

8、完成墻體,門和窗的放置后,大致的房屋就已經完成,下面,我們即可進行樓梯的放置,選擇“樓梯其他——雙跑樓梯”,樓梯的樣式可以根據需要進行替換。
天正cad怎么畫多跑樓梯?cad三跑樓梯的畫法

9、在彈出的樓梯設置窗口,我們可以設置樓梯的寬度,臺階總數等各類信息,在繪制時要結合實際進行考慮。

10、樓梯默認出現時為“豎直”的形態,按下鍵盤“a”鍵,即可輸入旋轉命令,樓梯就會變成“橫躺”的形態,可以根據實際需要進行轉換。

11、將樓梯移動到合適的位置后,單擊鼠標即可完成樓梯的繪制,樓梯的線條顏色為黃色,上下線為綠色,能夠在圖紙中很容易的區別。

12、最后,按下鍵盤空格鍵即可結束命令,這樣我們就繪制完成了一個相對完整的建筑圖紙,如果需要我們還可以在圖紙中放置各種部件,繪制完成后要記得保存,以免數據丟失。

注意事項:雙跑樓梯適合在非1層和頂層的平面圖紙中使用。
相關推薦:
CAD怎么保存圖層為建筑模版?
天正建筑cad中錯誤的坐標系怎校正?
cad2013/2014天正建筑啟動時出現error錯誤該怎么辦?
新聞熱點
疑難解答