CAD作圖時,偶爾會使用到之前的模板,但是在細節方面又會有些差異,需要大批量修整。這里就簡單講一下文字方面的批量修改。


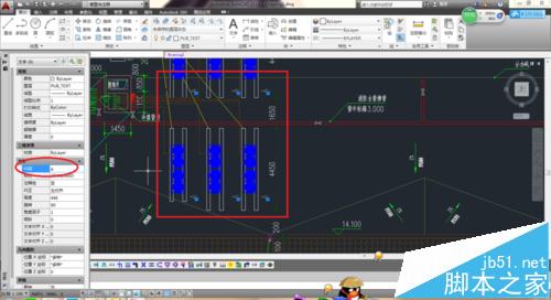
1、選中需要修改的文字,并調出“特性”面板

2、如果需要將選中文字修改為統一內容,只需在“文字內容”處輸入新的文字就好


3、如果,需要大面積修改文字內容,那就需要用到和表格類似的“查找-替代”命令了。具體操作:復制需要修改的原內容

4、大面積選中需要修改文字的范圍,并在”命令欄“輸入”FIND"命令,回車鍵“確定”

5、依照界面提示,將之前復制好的內容放在“查找”位置,并在“替換”處填上需要的內容。然后!!!右邊“查找位置”處,切記選擇“選定對象”,不然修改了多余的地方,之后還的繼續休整。完成之后,點擊下方“全部替換”

6、操作界面提示命令完成,點擊確定并關閉彈窗,文字批量修改完成。


相關推薦:
CAD圖紙怎么統一修改字體大小?
cad中怎么修改標注中的文字的數值?
UG工程圖導出cad顯示不全不能修改該怎么辦?
新聞熱點
疑難解答