在我們的工作中經常會需要通過CAD圖紙計算其中的工程量,計算長度時一段一段去標記計算太麻煩,通過多段線計算長度等是CAD的功能之一,它可以大大節約我們的時間,為我們工作提供方便。
1、打開需要計算工程量的CAD圖紙。

2、通過鼠標,調整到需要計算的位置。

3、在CAD左側菜單欄中鼠標左鍵點擊多段線,然后在圖紙中選中需要計算的多段線。

4、還可以通過上側菜單欄中的繪圖-多段線,選中后在圖紙中畫出多段線。

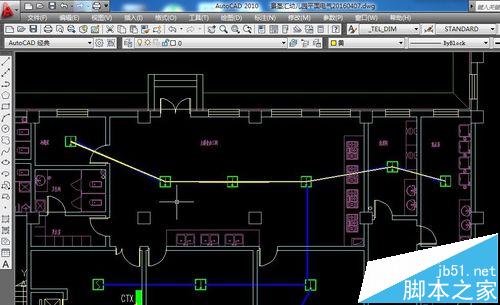
5、選中多段線后在圖紙中沿著線路走向畫出多段線。

6、選中剛剛畫出的多段線,彈出多段線圖層框,在里面的全局寬度輸入一個數值,可以使該多段線看起來更加明顯,一般30-60即可。

7、選中該多段線,單擊鼠標右鍵選擇特性,即在CAD右側彈出特性對話框。

8、在特性對話框中找到幾何圖形,最后一項長度,即為該多段線的長度。

相關推薦:
cad圖紙快速計算平面面積的小技巧
CAD2014單元格用公式計算的結果精度怎么修改?
cad中如何計算面積?根據cad圖紙計算面積的方法
新聞熱點
疑難解答