CAD如何制作可以拉伸的塊,【拉伸塊】就是主要部件一樣但是形狀大小長度有差別的一類【塊】,拉伸塊在繪圖中可以給我們畫圖改圖帶來很大的方便,下面我們就來學習拉伸塊的制作
1、我們來制作如圖一個【窗】的拉伸塊,首先制作一個塊名為【窗】的普通塊,如圖步驟




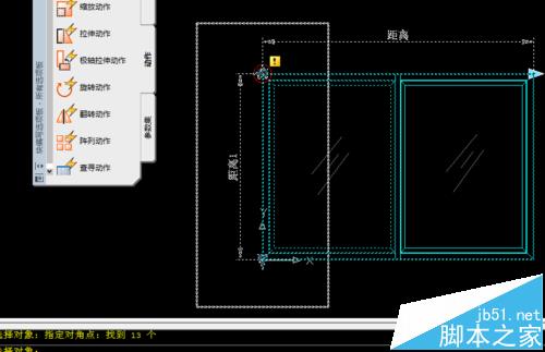
2、雙擊做好的【窗】塊,進入塊編輯器內,在左側參數欄內點擊【參數】內的【線性參數】按鍵

3、在要拉伸的方向上拉出距離,如圖

4、在左側塊選項板中點選【動作】中的【拉伸動作】,在窗口的點選要拉伸的距離線,如圖

5、根據命令欄中引導如圖操作








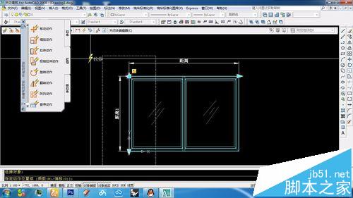
6、重復剛才的操作三次,做出如圖效果,點擊【關閉塊編輯器】點【是】退出


7、完成后的窗塊,如圖,便可以左右上下隨意拉伸大小了這對于立面圖窗的繪制很有幫助,可快速修改拉伸塊。
相關推薦:
CAD中拉伸命令的詳細使用方法
cad三維拉伸怎么用? CAD使用三維拉伸命令的詳細教程
cad圖框塊怎么放大? CAD塊編輯工具制作一個任意拉伸圖框的教程
新聞熱點
疑難解答