CAD是在建筑領域廣泛使用的繪圖軟件,無論在工作還是學習中,都會經常用到AUTOCAD進行圖紙的繪制,在使用AUTOCAD繪制建筑圖紙時,我們需要在平面圖上放置一些家具,來增加平面圖的整體效果,同時形象表現出平面圖中各個房間的具體用途,下面我們就來看看如何使用AUTOCAD添加家具。

1、首先,我們開啟AUTOCAD繪圖軟件,使用AUTOCAD開啟我們需要進行家具添加的圖紙,使用鼠標的滑輪擴大圖紙,調整圖紙到合適的位置,方便我們進行家具的繪制。
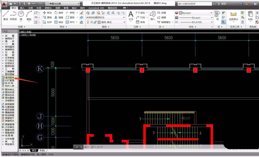
2、在AUTOCAD中并沒有直接的家具添加命令,我們需要在天正繪圖左側的工具欄中選擇“圖塊圖案”,在彈出的次菜單中,選擇“通用圖庫”進入系統預設圖庫。
3、確定“通用圖庫”命令后,會自動彈出圖庫窗口,我們在彈出的窗口中,選擇“二維圖庫”,確定后,會彈出此文件夾,雙擊打開。
4、可以看到,出現了一系列的菜單選項,其中包含各種平面家具潔具,以及建筑的配景等,我們點擊“平面家具”,進入到預設的平面家具圖形列表中。
5、點開“平面家具”菜單后,系統會彈出一系列的家兔預設圖紙圖形,我們可以選擇我們需要的家具類型進行點擊選擇,我們以家具床為例,點擊確定床的類型。
6、確定家具的類型之后,在窗口的右側會出現系統擁有的各類圖形,我們可以瀏覽各種不同的圖案,來選擇我們需要的家具類型,雙擊即可進行確定。
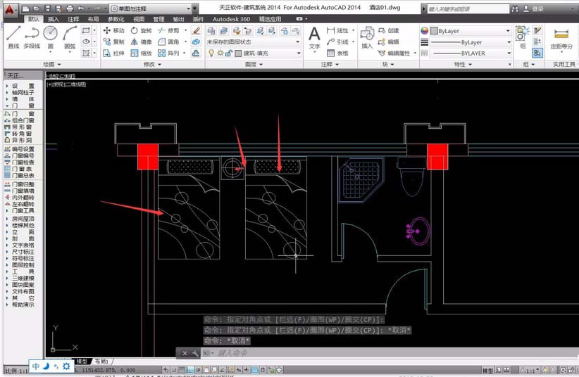
7、確定我們需要的家具類型后,即可進行家具的放置,在AUTOCAD的繪圖頁面的左上角,可以對家具的具體屬性信息進行設置,家具會隨鼠標進行移動。
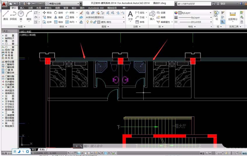
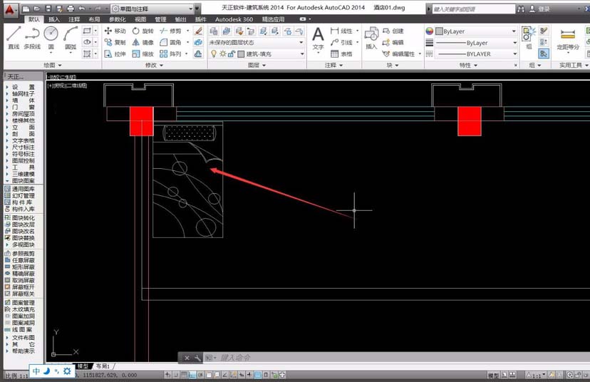
8、調整家具尺寸后,將鼠標移動到合適的位置,單擊鼠標左鍵即可確定家具的放置,將家具放置到合適的位置,這樣我們就完成了家具的放置。
9、如果我們需要多次放置,我們可以按下空格鍵,進行命令的延續,即可繼續放置相同的家具,但是如果需要其他家具添加,就需要重新進入家具的選擇窗口。
10、這樣我們就完成了AUTOCAD的家具添加,后續繪圖時,在房間相同的情況下,我們可以直接進行大范圍的復制操作,將家具整體進行復制粘貼,從而節約大量的時間和操作。
相關推薦:
怎么把su導入cad平面圖建模呢?
CAD怎么快速修改三維家具模型的尺寸?
CAD怎么繪制一組沙發? CAD繪制家具圖的教程
新聞熱點
疑難解答