在建筑圖繪制工作中,會遇到很多圖塊要是一樣的,有些大同小異,相同的圖塊可以同用,但是不同的時候呢,在這里我們在創建圖塊的時候,就需要創建一個動態的圖塊來滿足繪圖工作的需要。動態塊在我們繪制好動態就不會受尺寸的約束,我們就可隨時根據實際情況來調整這扇門、窗的大小。下面我們以門的塊繪制好,繪制好的門轉化為塊,再由塊轉換為動態塊。

1、先繪制好平圖圖,門的圖塊。注意經圖有標注意在方便理解。如下圖:

2、刪除標注。執行“創建塊”命令(B)/“繪圖”---“塊”---“創建”。將門對象創建為圖塊,創建圖塊的名稱為“M800”。點擊“確定”塊就創建完成了。



3、雙擊已經創建的塊,彈出塊“編輯塊定義”對話選擇框,選擇被編輯的塊,確定,如下圖:


4、在“塊編寫選項板”中的“參數”選項中選擇“線性”項,根據命令行提示,創建一個線性參數,如圖所示。

5、刪除“線性”參數的向下箭頭。如下圖:


6、在“塊編寫選項板”中的“動作”選項中選擇“移動”項,然后根據命令行提示,在選擇參數時,選擇已經創建的線型(距離1),系統提示“選擇對象:”時,選擇門框對象,按空格鍵確定,從而形成了一個移動圖標,表示創建好了移動。如圖所示。


7、在“塊編寫選項板”中的“動作”選項中選擇“縮放”項,然后根據命令行提示,在選擇參數時,選擇已經創建的線型(距離1),系統提示“選擇對象:”時,選擇開門弧型對象,按空格鍵確定,從而形成了一個縮放圖標,表示創建好了縮放。如圖所示。


8、在“塊編寫選項板”的“動作”選項中選擇“拉伸”項,然后根據命令行提示,選擇創建的線型,系統提示“選擇對象:”時,選擇所有門板對象,按空格鍵確定,從而形成了一個拉伸圖標,表示創建好了動態拉伸。如圖所示。


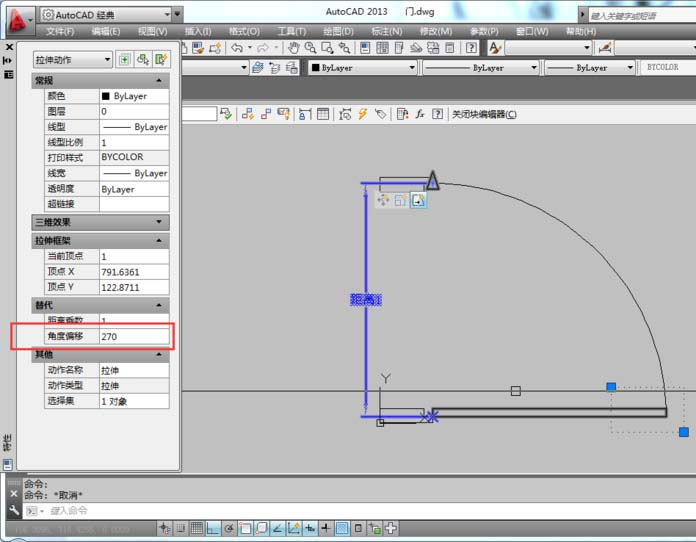
9、選擇形成了一個拉伸圖標,在空白處點擊鼠標右鍵選擇“特性”。如圖所示。修改"角度偏移"值:270,如圖所示。



相關推薦:
CAD圖塊怎么編輯修改?
cad怎么繪制單扇門的平面圖?
cad平面圖門窗怎么畫? CAD門窗平面圖的繪制方法
新聞熱點
疑難解答