前幾天有人在網上問了這個問題并附上了截圖,當時我還沒太在意,今天我重現了這個現象并找到原因,簡單給大家講一下。

一、原因介紹
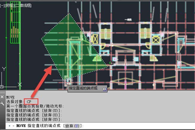
1、這其實不是錯誤,而是AUTOCAD 2015板增加的一個新功能。在PS等軟件中就有套索的功能,用戶可以用不規則的區域來選擇圖形。其實在CAD低版本中也可以用多邊形區域來選擇圖形,在命令提示選擇對象時,可以輸入WP或CP用多邊形區域進行窗口和交叉選擇,如下圖所示。

2、當命令行提示選擇對象時,輸入?號,回車,我們就可以看到WP、CP等這些隱藏的捕捉選項,前面曾發文章介紹過,這里就不再多說了。
我想AUTOCAD為了讓不規則區域選擇更方便,也是為了模仿PS的套索選擇功能,到AUTOCAD 2015版對框選進行了改進。選擇對象時,我們單擊左鍵,松開鼠標,拖動,就變成矩形的窗口選擇,如果按住左鍵拖動就會自動變成套索選擇。對于套索選擇,同樣存在三種模式,當出現套索時,我們注意看命令行提示,如下圖所示。



3、命令行提示我們可以按空格鍵可在三種模式間切換,這三種模式分別是窗口、窗交和欄選,窗口就是在完全在套索區域內的圖形才會被選中,窗交是只要有一部分在窗口內部的圖形都會被選中,欄選就是與套索邊界相交的對象才會被選中。大家既然學會了如何操作,不妨可以試試這三種套索模式選擇的效果,看看自己哪些情況下用得上。
二、關閉套索選擇
如果你覺得套索選擇能用得上,你就需要注意他和矩形窗選的操作的區別,掌握好操作的技巧。如果我們覺得套索選擇不方便,而且還會妨礙我們正常的選擇的話,可以將套索選擇關閉,關閉的方法非常簡單。
輸入OP,回車,打開選項對話框,單擊“選擇集“選項卡,我們會看到一個"允許按住并拖動套索"選項,單擊取消勾選此選項,然后我們再選擇對象時,即使按住鼠標左鍵并拖動也不會出現套索了。


2、CAD在推出新功能后,有些會對操作習慣有所改變,有的人會快速適應這種變化,但這種改變可能對有些人用處不大,但對他們之前習慣的操作反倒有影響,因此很多人寧愿用老版本。CAD每個版本都會增加一些新功能,有些功能大家很快就會用起來,但有些功能卻過了好多年仍然沒有多少人用,有些功能很強大,但操作比較復雜,比如圖紙集、動態塊、參數化等,有些功能隱藏得較深,CAD幫助還放到了網上,看起來很不方便,于是知道的人也不多。
編輯圖形就需要先選擇圖形,提高選擇的速度對提高圖形編輯的效率非常重要,因此CAD不斷增加各種選擇方式,點選、框選、選擇過濾器、快速選擇、選擇相似對象、套索選擇,還有好多隱藏起來的選項選項,了解這些選項的作用,在選擇圖形時選擇最合適的方式可以起到事半功倍的效果。
形時選擇最合適的方式可以起到事半功倍的效果。
相關推薦:
CAD2017怎么設置圖形界線?
CAD怎么使用命令提取圖紙中圖形的數據?
cad怎么使用對象捕捉追蹤繪制插座圖形?
新聞熱點
疑難解答