建筑物上部結構采用框架結構或單層排架結構承重時,基礎常采用圓柱形和多邊形等形式的獨立式基礎,這類基礎稱為獨立式基礎,也稱單獨基礎。獨立基礎分三種:階形基礎、坡形基礎、杯形基礎。下面來看怎么在cad中繪制獨立基礎平面圖。
cad中繪制獨立基礎平面圖教程
1、首先打開一個繪制好軸網的圖紙,然后點左側工具欄中的基礎樓梯,讓農戶點擊布置基礎。

2、在彈出的窗口中首先設置基礎的標注位置,標注方式和編號的標注方式以及基礎的編號。

3、然后我們設置基礎的邊長,如果需要還需要設置偏心距等,完成后點擊確定完成設置,進入繪制。

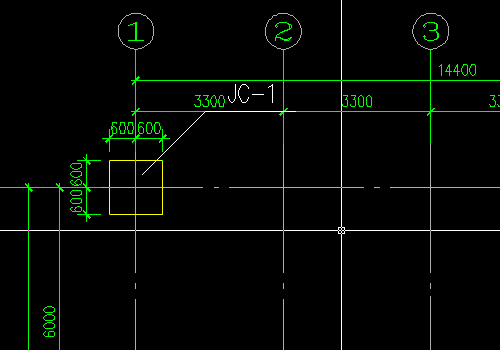
4、在繪圖空間中點擊軸網需要繪制基礎的部位點擊左鍵繪制基礎。

5、點擊后繪制完成,如果是相同的基礎油多個,我們可以繼續點擊來繪制;如果不同我們重復第二步,設置后繼續繪制。

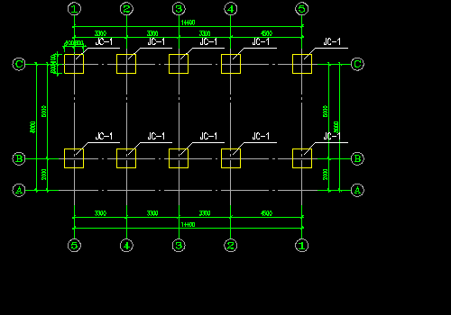
6、這是繪制好的獨立基礎平面圖。

教程結束,以上就是關于獨立基礎平面圖怎么畫?cad中繪制獨立基礎平面圖教程的全部,希望大家喜歡!!更多精彩,盡在武林網網站!
新聞熱點
疑難解答