cad滬指圖紙很簡單,想要繪制一個簡單的建筑圖紙,該怎么繪制建筑平面圖呢?下面我們就來看看詳細的教程。

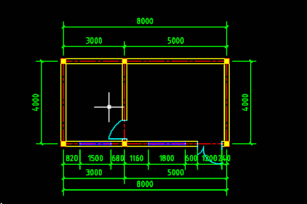
1、首先,運用繪圖功能中的直線按照比例尺寸繪制出軸網。軸網繪制我們一般將軸網的顏色選擇為紅色,軸網的線型選擇為虛線形式。這樣做的目的為了區分線條,圖紙繪制好以后看圖容易一目了然。

2、軸線繪制好以后,接下來繪制墻體。運用軟件中的偏移功能將軸線兩面偏移,偏移后將線條的顏色改為黃色,將線條的線型改為直線。這樣墻體就繪制好了。

3、墻體繪制好以后,接下來再來繪制構造柱。同樣適用繪圖功能中的直線功能或者多邊形,先在需要布置柱的位置繪制出柱的輪廓。在運用軟件中的圖案填充功能將柱的區域填充后構造柱就布置好了。

4、構造柱布置完成以后,就要繪制門窗了。根據所需要的門窗大小在擬定的位置布置門窗。窗戶的顏色選用藍色,門的顏色選用淺藍色或其他顏色。

5、門窗繪制好以后,選擇標注中的線性來對圖紙進行標注尺寸。標注尺寸的顏色一般都選用綠色。

6、尺寸標注完成以后在來標注一下軸號,軸號標注好以后圖紙基本上就已經繪制好了。如果感覺圖紙還是表示的不太清楚的話,還可以在圖紙的一側標注一下文字說明來說明圖紙的內容。

以上就是cad繪制建筑平面圖的教程,希望大家喜歡,請繼續關注武林網。
相關推薦:
cad怎么畫蘋果的平面圖?
CAD怎么畫風葉輪零件平面圖?
cad怎么畫廠房的線條平面圖?
新聞熱點
疑難解答