基于大家熟悉的AutoCAD軟件平臺,AutoCAD Plant 3D能夠幫助工廠設計師和工程師創建先進的三維設計,對加工工廠進行設計、建模和文檔編制,而且基于等級的設計和元件庫,它還能夠幫助有效簡化管道、設備和支撐結構的放置流程,下面我們就來看看三維管道加工ISO軸側視圖的方法,詳細請看下文介紹。

1、打開AutoCAD Plant 3D,打開默認項目,也可以自己新建一個項目!在左邊的項目管理器的plant3D模型下面右鍵新建一個圖形文件。

2、命名文件名字后點擊確定。

3、我們簡單畫一個管道,來作為示例!我們畫了一段管道加了一個球閥和一個蝶閥。

4、我們選中畫的管道,按ctrl+1快捷鍵調出特性面板,給管線加上管線號,比如我們給命名為:001X。


5、點擊ISO菜單欄,然后點擊加工ISO,當然我們也可以給管道指定流向箭頭。

6、選擇我們畫的圖形的管線號,指定ISO樣式,點創建。

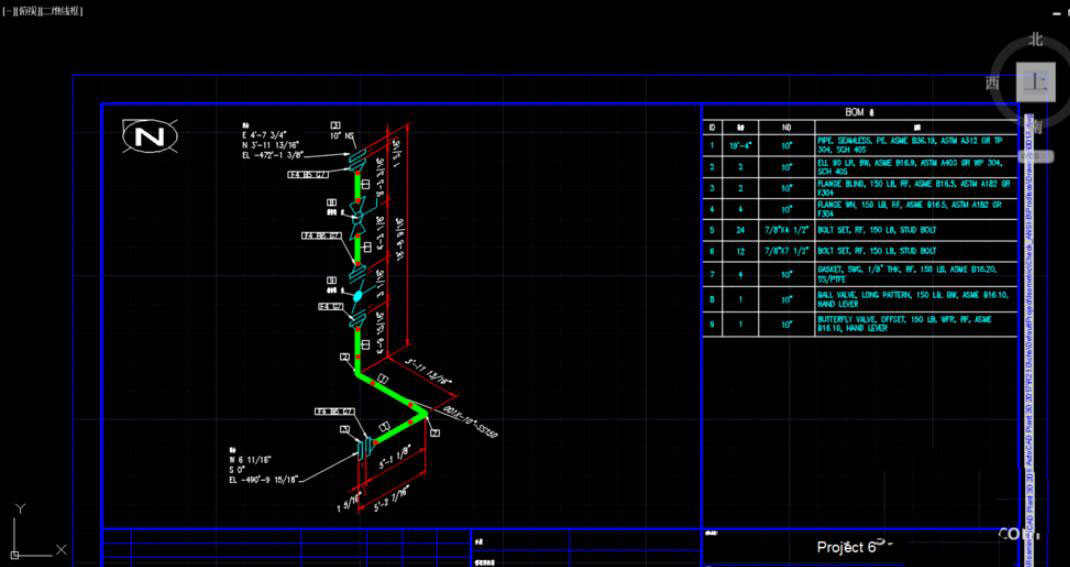
7、等一會兒之后創建好了,點擊我們就可以看到效果了。左邊是圖形右邊是材料表。



以上就是CAD Plant 3D圖紙加工ISO軸側圖的教程,希望大家喜歡,請繼續關注武林網。
相關推薦:
CAD圖紙打印怎么去除空白邊緣?
cad怎么繪制強中雙扇推拉門平面圖紙?
cad怎么繪制推拉移動門? cad移門圖紙的畫法
新聞熱點
疑難解答